Финская утепленная лента — вот предмет нашего разговора с Сергеем Филипповым, строителем из Финляндии.Сегодня мы с ним подробно разберем все теоретические вопросы по строительству данного вида фундамента.
Всем приятного и полезного просмотра!!!
Ютюб канал Сергея Филиппова https://www.youtube.com/channel/UCOtS…Подписывайте — там реально много интересной и полезной всем информации.
Координаты участка в Финляндии с свайно-винтовым фундаментом 61°24’42.6″N 28°49’35.5″E____________________________________________________________________Заявки на проектирование, изготовление домокомплекта и строительство каркасного, Фахверкового или газобетонного дома принимаем на почту — [email protected]
Ресурс для сбора денег на протез в рублях Валерию: http://yasobe.ru/na/protezis
евро и доллары:BENEFICIARY BANK: SEB Banka LATVIA S.W.I.F.T CODE: UNLA LV 2XBENEFICIARY: VALERIJS SCERBAKOVSACCOUNT NO: LV22UNLA0055000098740 EUR
Ролик о строительстве дома Валерием: https://www.youtube.com/watch?v=KtTJetTNoDA&t=15s
Подписывайтесь на наш новый канал в Телеграмм https://telegram.me/sig2015http://sv-fundament.ru — Сайтhttps://vk.com/stroyizhivi — ВК Группаhttps://www.instagram.com/stroyizhivi — Instagramhttps://www.instagram.com/kasumov.aleksandr/ Инстаграмм Касумова Александраhttps://twitter.com/SV_Fundament — TwitterПишите — мы с радостью ответим Вам !!!
На Развитие Канала— карта Тинькоф 5213243730833439— WEBMONEY R585357398038— QIWI Кошелёк https://qiwi.me/narazvitiecanala
stroitelsam.ru
Популярность загородного домостроения уверенно растет с течением времени. Желание жить загородом, дышать чистым воздухом, заботится о собственном здоровье – определяет цель. Загородный дом.
Возникает вопрос – из чего строить? Кирпичный дом, или деревянный?
Эта статья будет полезна тем, кто остановил свой выбор на деревянном доме. Даже скорее всего для тех, кто уже проделал определенную работу и решил купить финский деревянный дом.
Разумно воспользоваться передовым опытом финских строителей. В современных условиях финны используют достаточно экономичный и вместе с тем, прочный фундамент. Нужно учитывать, что финские деревянные дома – это легкие постройки, не требующие мощного фундамента. Кроме того, финские каркасные дома ещё менее требовательны к фундаменту, поскольку имеют в своем основании самонесущий каркас, способный нести значительные нагрузки самостоятельно.
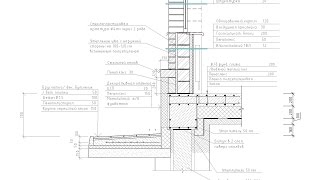
Мелкозаглубленная бетонная плита - абсолютно достаточна для деревянного дома. Под всей площадью дома выбирается грунт на глубину 50-60 см. Затем выполняется подсыпка из смеси гравия и песка (ПГС) – 30 см. С послойным тромбованием. Поверх подсыпки укладывается понополистрил – 5-10 см. Далее – гидроизоляционная мембрана. Поверх мембраны укладывается армированный бетон толщиной 30 см.
Таким образом, над уровнем земли получаем бетонную плиту высотой 5-10 см. Уже на ней можно устроить небольшой цоколь 30 -40 см. из кирпича, или бетона.
Этот фундамент – не самый дешевый. Примерно – золотая середина, с точки зрения ценовых затрат. Зато один из самых прочных. Пригоден практически для любого финского деревянного дома. Будет ли это каркасный дом, или дом из клееного бруса – значения не имеет.
Ростверк на мини-сваях. Более экономичен. Еще один интересный фундамент. Незаслуженно забытый.
Устраивается свайное поле – то есть сваи забиваются по всему периметру фундамента, включая перегородки. Используются легкие сваи ГОСТ. Забиваются мини установкой на базе Газ-66. Количество свай определяется расчетами по нагрузкам. Благодаря легкой технике и легким сваям – фундамент удобен в монтаже практически везде. Далее верхняя часть сваи зачищается от бетона и связывается с арматурой основного ростверка. Он – может быть не большим. Примерно 30х50 см.
Ростверк требует обмазочно-клееной гидроизоляции.
Такой фундамент почти копирует то, что применяется при строительстве многоэтажных домов. Но – в миниатюре.
Ростверк по буронабивным сваям. Это разновидность вышеназванного данного фундамента. С разницей только в том, что сваи высверливаются ручным, или механическим способом, а затем армируются и заливаются бетоном.
Экономичный фундамент Устраивается траншея по всему периметру фундамента, включая перегородки. Габариты траншеи 40см шириной х 70 см глубиной. Выполняется замена грунта. Сначала песок – 20 см, а затем – щебень, или ПГС до уровня земли. Все – с послойным тромбованием. На утрамбованном грунте устраивается армированный бетонный ростверк 30 х 50см. Этого вполне достаточно для устройства деревянного дома небольшой площади. До 150 м2.
Из всего перечисленного можно сделать оптимистичный вывод. При правильном расчете конструкции фундамента под деревянный дом, соблюдении технологии производства фундамента и соблюдении качества самого бетона, можно существенно сберечь средства. В отличии от строительства фундаментов под дома из кирпича, или газобетонных блоков. Так как последние более требовательны к жесткости фундамента и существенно тяжелее, чем деревянные дома.
finn-house.net
Утепленный финский фундамент - одна из самых интересных технологий, пришедших из скандинавских стран. Все...
Финская утепленная лента - вот предмет нашего разговора с Сергеем Филипповым, строителем из Финляндии....
В этом ролике я решил рассказать свое понимание финской технологии мелкозаглубленных ленточных фундамент...
В данном видео я рассказываю об утепленном финском фундаменте (УФФ), который я вместе с командой Skandihaus возво...
Хотите сэкономить время и деньги при строительстве дома? Узнайте о новой технологии несъемной опалубки...
Утеплённый финский фундамент. Укладка керамзитобетонных блоков.
Финская технология строительства домов.
Разговор с инженером-строителем из Финляндии. Ссылка на канал Сергея: https://www.youtube.com/channel/UCOtSkGN5NGSe7tjrxhLa_7g .
Европейская технология строительства фундамента. Теплый пол.
Наши северные соседи, финны, в 90% случаев при строительстве дома возводят УФФ - Утепленный Финский Фундамен...
Краткий обзор технологии заложения незаглубленного утепленного ленточного фундамента Oydo.ru - Строительств...
В данном виде я покажу одно из множеств решения строительства опалубки под фундамент. Для Своего фундамент...
Для того, чтобы ходить людям по полу на грунте, совсем необязательно 30-40 сантиметров железобетона под ногам...

Ура! Стройка поперла! Фундамент залит и уже выложены ряды блоков. Более того их уже даже утеплили и прошлись...
Начинаем с распределения мостков, используя детали опалубки, изготовленными индивидуально для каждого...
СТРОИТЕЛЬСТВО ЛЕНТОЧНОГО ФУНДАМЕНТА В ПЕРМИ. Тел. +7(922) 340-10-14 Ссылка на мой канал: ...
Кирпичные дома и коттеджи подпишись тут https://zen.yandex.ru/id/5a86df693c50f7afb2172236 Наш сайт http://www.монолитные-решения.рф...

Видео с сайта http://karkasdom.info Часть 1, начало стройки https://youtu.be/GT6QfsiddhM Этот дом на торфяном участке http://karkasdom.info/phot...
Одно из самых актуальных направлений в строительстве и конкретно фундаментах - это так называемая Утеплённ...
Предлагаем комплект плит для устройства фундамента по технологии "Утепленная шведская плита". Позволяет...
Фундамент. Утепление. Отопление. Вентиляция. Электрика. Канализация. Водоснабжение. Полезно для профессион...
Наши северные соседи, финны, в 90% случаев при строительстве дома возводят УФФ - Утепленный Финский Фундамен...

Фундамент дома в Германии.
Не знаете какой фундамент выбрать? Обратите внимание на новый тип фундамента, который вобрал в себя комбина...
Видео с сайта http://karkasdom.info Вторая часть https://youtu.be/11omPAEnxJM Фотагалерея стройки по данному дому http://karkasdom.info/photogal...
Презентация по разновидностям ленточного фундамента от компании 000 "Альфа Строй". Огромное спасибо, руковод...
Строительство домов в Финляндии . В видео пойдёт речь о фундаменте и межэтажном перекрытие , а также Вы увид...
Хотите сэкономить время и деньги при строительстве дома? Узнайте о новой технологии несъемной опалубки...
Делимся с Вами кратким обзором на этапе строительства дома в Слободском районе Кировской области: - фундаме...
Монолитная плита. Фундамент с монолитным погребом залитый из бетона, командой BuildOpen. http://www.buildopen.ru Монолитна...
Не секрет, что финские дома - это лучшие по своим качествам дома в нашем регионе. И часто слышишь от потенциа...
Учебный фильм для финских пэтэушников. Фильм о том , на чем нельзя экономить и как правильно строить даже...
Хотите сэкономить время и деньги при строительстве дома? Узнайте о новой технологии несъемной опалубки...
На ряде строительных форумов и сайтов можно найти хвалебные оды шведской плите как основания дома, но по...
Как в Финляндии строят каркасные дома вы сможете увидеть одну из технологий какой фундамент и технологию...
Двухквартирный жилой дом общая площадь 150кв.м.
Как правильно делать один из видов малозаглублённых фундаментов - УШП подробно показано в ролике. Подробна...
osmanl? tokad? mehter mars? adana ak?l hastanesi polis oyunu pc windows 10 usb den format atma grimnax twitch unturned tank 3 katl? villa modelleri kilisede ankaran?n baglar? yoga frikikleri metin2 kolay maymun zindan?
debojj.net
ReadMeHouse
Энциклопедия строительства и ремонта